Nos biens en Italie
Construction neuve offrant une vue imprenable et un jardin privé.
| 3 chambres
| 77 m2
| 
Villa neuve avec une grande terrasse privative de 17 m² donnant sur les oliveraies environnantes, typiques du paysage toscan, et un jardin privatif de 25 m² à l’arrière.La propriété s’étend sur trois niveaux et dispose de deux places de parking privatives, dont une couverte, ainsi que d’un débarras sous l’escalier au rez-de-chaussée.Les pièces à vivre, réparties sur deux étages, bénéficient d’une luminosité exceptionnelle grâce aux portes-fenêtres et à l’espace de vie ouvert. Le panorama sur les collines, encadré par les fenêtres, offre un véritable tableau qui s’intègre harmonieusement à la décoration.La résidence, située à quelques pas du centre historique du village, est entièrement clôturée et équipée d’un portail électrique télécommandé, garantissant ainsi une intimité maximale aux résidents.
La villa est également équipée d’une pompe à chaleur et d’un système photovoltaïque partagé.
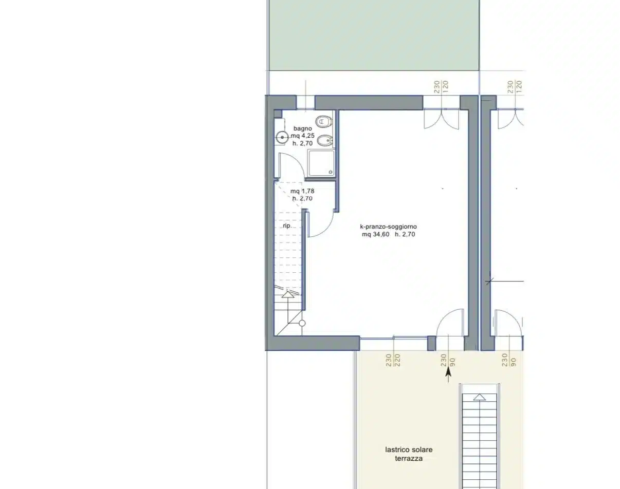
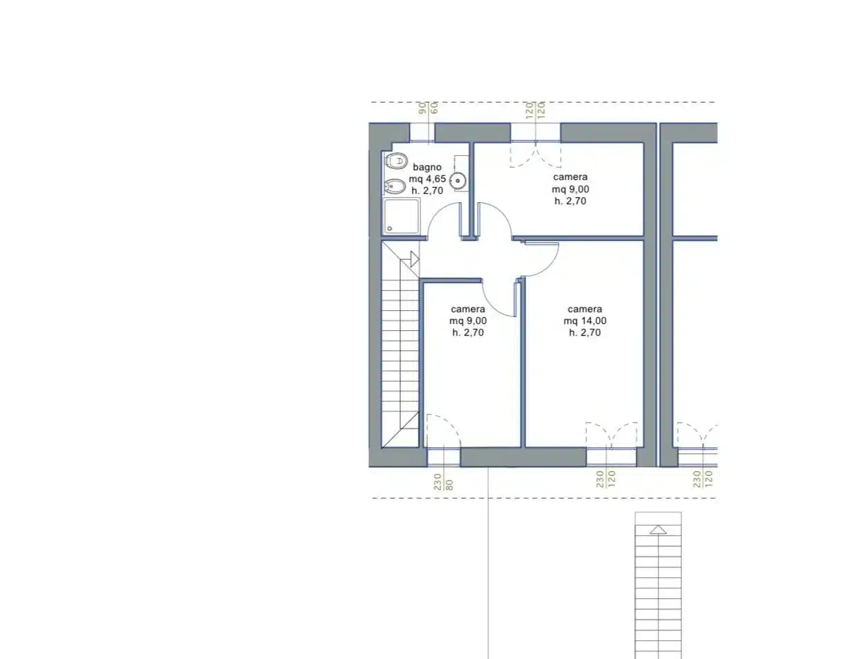
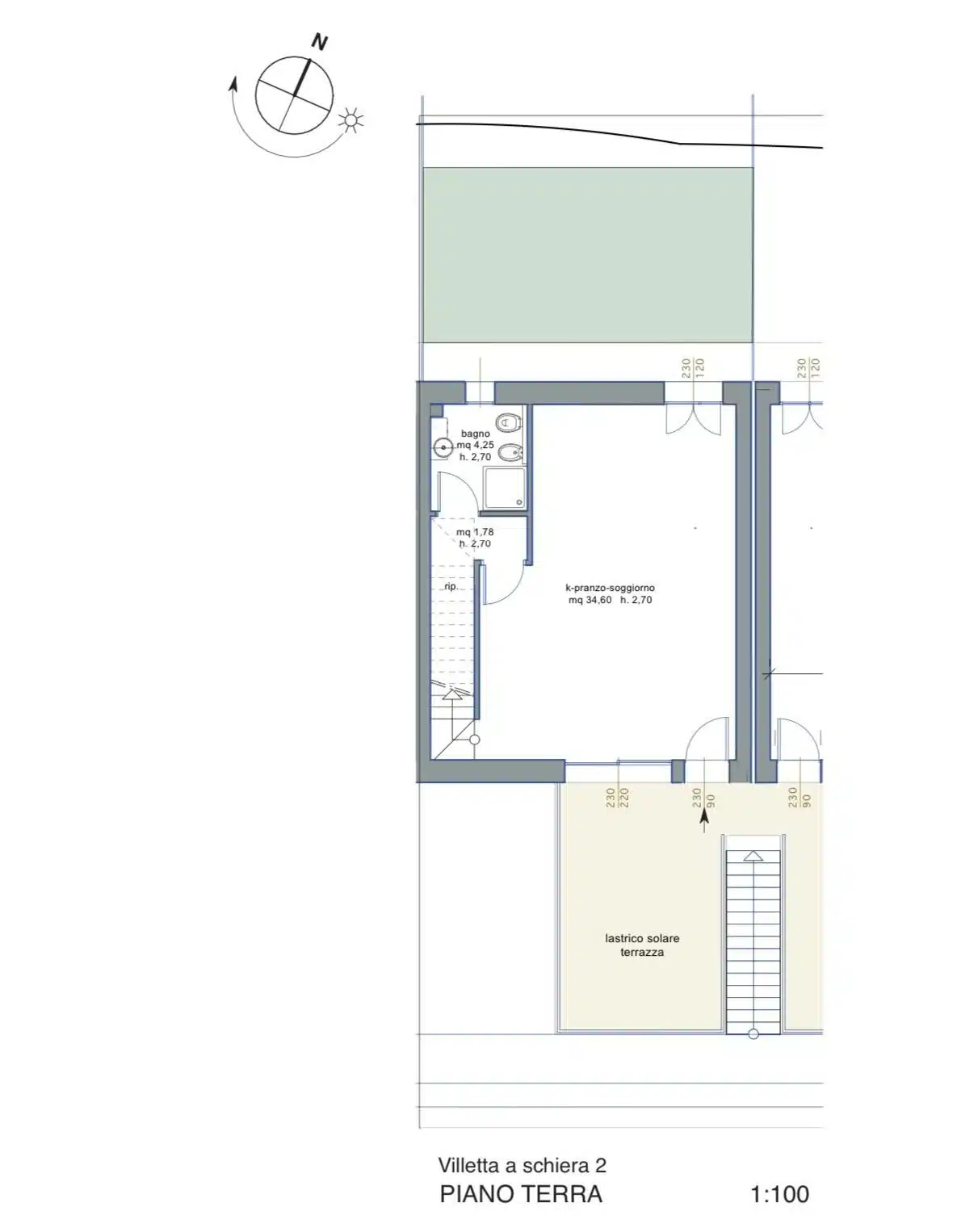
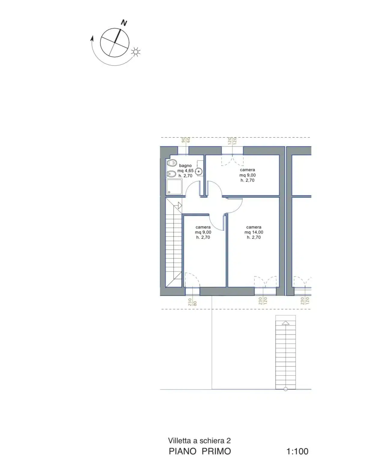
Descriptions des espaces
Rez-de-chaussée : deux places de parking, débarras.Premier étage : grande terrasse, espace ouvert, salle de bains avec douche, buanderie, jardin privatif.Deuxième étage : trois chambres, une salle de bains avec douche.
215.000 €
État : excellent
Disponible : À l'acte
Caractéristiques du bien
Lieu
Surface habitable: 77 m2
Jardin: Oui
Garage: 0
Confort
Cuisine: équipée
Chambre(s): 3
Salle(s) de bain: 2
Localisation
Adresse du bien : Caldana
API keys with referer restrictions cannot be used with this API.
Un bien vous plaît ?
Contactez l’agence par e-mail, par téléphone ou via ce formulaire suivant, nous vous recontacterons dans les 48h

























































